星空注册_星空(中国)

星空注册_星空(中国) 是致力于打造绿色星空注册_星空(中国) ,专注星空注册_星空(中国) 设计的济南星空注册_星空(中国)公司

济南星空注册_星空(中国)
设计-济南星空注册_星空(中国)公司-山东星空注册_星空(中国)装饰设计有限公司

全国统一服务热线
0531-58763069



大家都在搜: 星空注册_星空(中国) 展厅星空注册_星空(中国) 幼儿园星空注册_星空(中国) 店铺星空注册_星空(中国) 餐饮星空注册_星空(中国)

列表页banner图
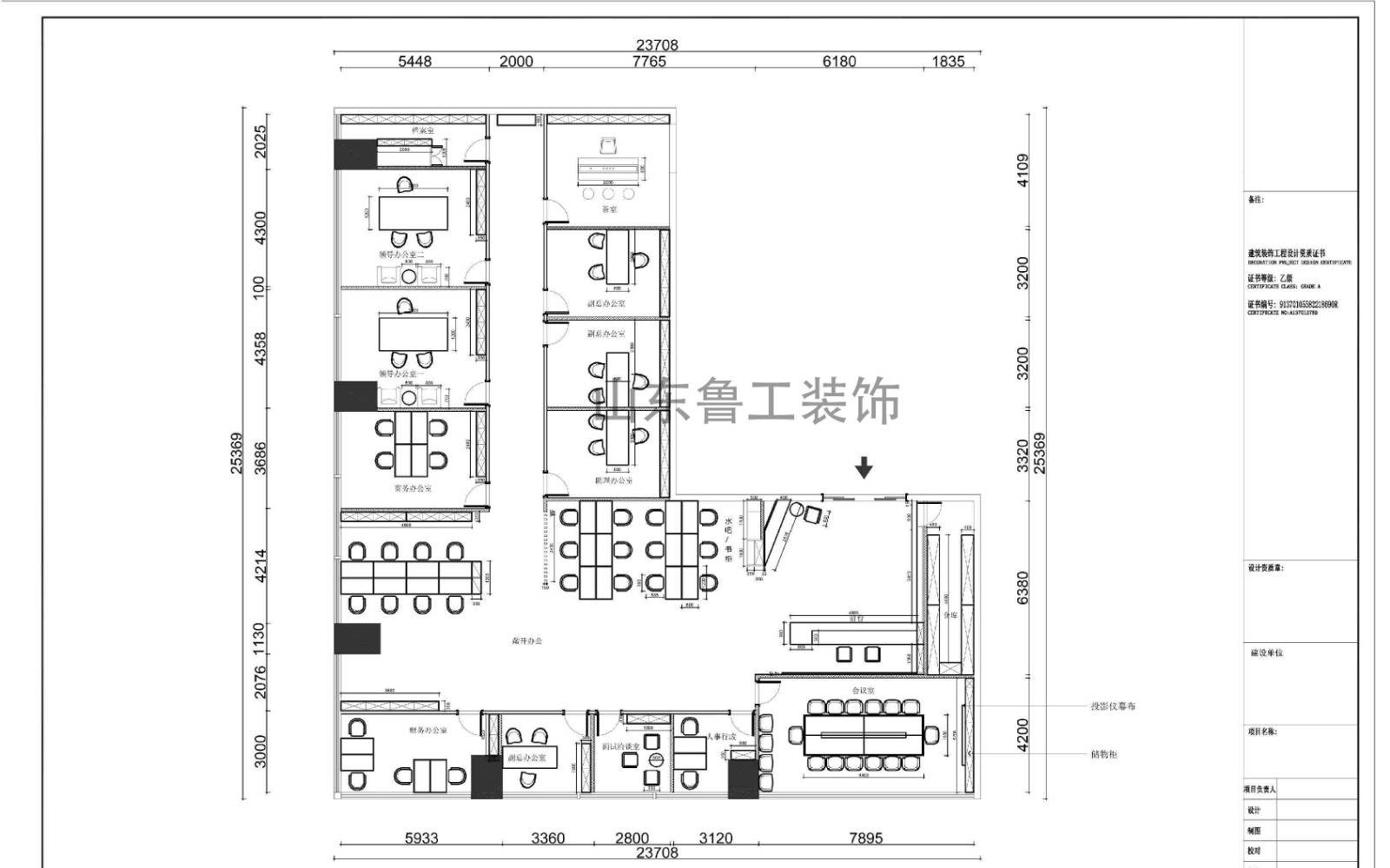
康振科技集团-办公室设计
文章作者:山东星空注册_星空(中国)装饰 上传更新:2021/08/18

611c730bc6074.jpg


611c73091a3c2.jpg




星空注册_星空(中国)报价咨询
免费热线:
0531-58763069

电话:0531-58763069